Contact
Jose Antonio Serres Soto, ARQUITECTO
Contact

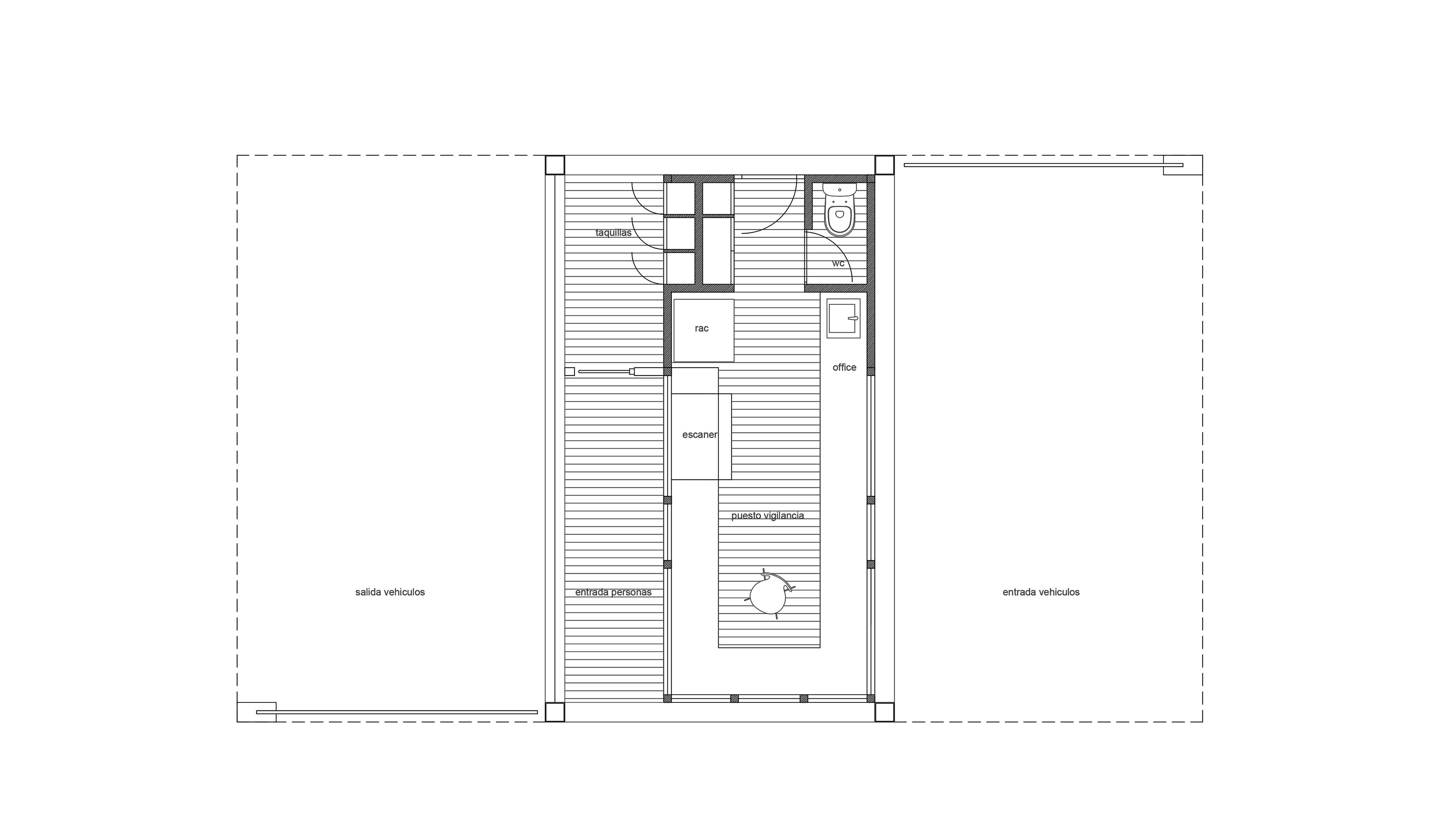
CASETA DE ENTRADA DANI

2007, Badalona (CATALUÑA)

OBRAS
Jose Antonio Serres Soto _ ARQUITECTO Colegiado COAC: 68291/8 _ T+34 688 279 070